Acest produs este indisponibil.
Descriere
Acest produs este disponibil doar la comanda. Lasa-ne un mesaj pe mail la comenzi@regata.ro si te vom contacta noi.
Cod produs: 23FWB35
JAR sunt cazane din oțel având o construcție eficientă cu 3 drumuri de fum pentru funcționare cu combustibili solizi
Sunt proiectate în conformitate cu normele europene EN 303/5. Grosimea pereților cazanului care intră în contact cu focul este de 5 mm
Cazanul este echipat cu termometru, tăviță de cenușă și kit curațare.
Regulatorul termostatic de tiraj pentru aer este obligatoriu și nu este inclus în furnitura standard.
Date tehnice centrala termica pe lemne Ferroli JAR 35 kW
- Putere nominală 35 kW
- Masa 301 kg
- Tiraj necesar 22 mbar
- Temperatura max de lucru 90ºC
- Presiune max de lucru 2.5 bar
- Conţinut apa cazan 104 litri
- Înălţime (mm) 1294 mm, Lăţime 560 mm, Adâncime 969 mm
- Racord evacuare gaze arse 149 mm
- Distanță baza cazan - racord coș 1140 mm
- Racord tur/retur încălzire G 1-1/4”
- Volum cameră de ardere 97 dm³
- Lungime max lemn 500 mm
- Diametru intern cos 200 mm
- Înălţime cos 8-9 m
- Suprafaţă de încălzit 180-210 mp.
Detalii centrala termica pe lemne Ferroli FSB JAR 35 kW
Centrala termica Ferroli JAR este destinata pentru sisteme de incalzire cu apa calda, si nu se poate utiliza pentru alimentare cu apa calda menajera in mod direct.
Se pot utiliza diferiti combustibili solizi: lemne, carbune, brichete din lemne, tocatura lemnoasa, orice fel de resturi si deseuri vegetale, agricole, forestiere sau silvice. Deoarece puterile calorice ale combustibililor sunt diferite, puterea cazanului va fi diferita in functie de tip de combustibil utilziat, insa intre anumite valori limita.
Cazanul nu poate fi instalat in camere locuite sau care au deschidere directa spre camere de zi.
Incaperea in care urmeaza sa fie amplasata centrala trebuie sa fie prevazuta cu aerisire si trebuie asezata in asa fel incat sa existe acces pe toate laturile acesteia.
Se recomanda curatarea cazanului de cenusa o data sau de doua ori pe saptamana sau ori de cate ori este necesar pentru a permite patrunderea aerului necesar arderii prin clapeta regulatorului de tiraj. Intretinerea regulata prelungeste durata de viata a cazanului. Curatarea se va efectua prin usa inferioara si superioara a cazanului dar si prin deschiderile din partile laterale si din spate.
Dimensionarea cosului este o conditie foarte importanta pentru functionarea cazanului la parametrii optimi. Cosul trebuie sa fie proiectat in asa fel incat sa faca evacuarea gazelor corect cat si sa pastreze aerul necesar in cazan.
In diagramele de mai jos este aratat modul de alegere al inaltimii cosului in functie de diametrul acestuia si de puterea cazanului.
Alegerea izolatiei adecvate pentru cos este foarte importanta si trebuie sa fie de 50 mm grosime.
Alegerea corecta a diametrului si inaltimii cosului sunt determinante in functionarea corecta a cazanului.
Inaltimea minima a cosului pentru cazanele pe lemne este 6 m. Cosul trebuie sa fie realizat din elemente din otel inox, pentru reducerea influentei condensului.
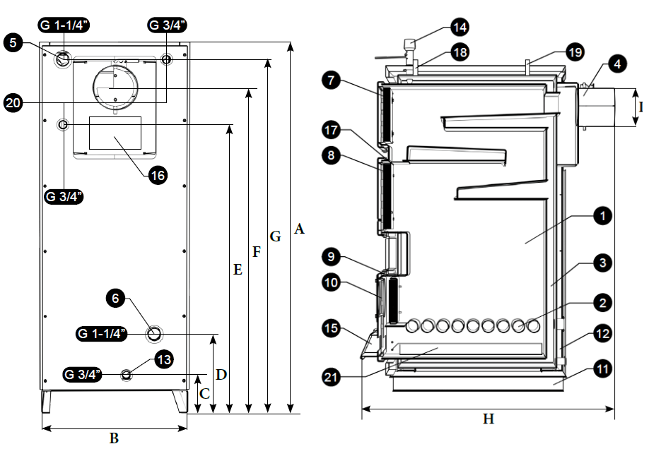
Prezentarea cazanului - elemente
1. Camera de ardere;
2. Grătar pentru ardere;
3. Corp cazan;
4. Racord evacuare gaze arse;
5. Tur;
6. Retur;
7. Uşă superioara;
8. Uşă centrală;
9. Uşă inferioara;
10. Flanșa montare arzător peleti;
11. Postament;
12. Izolație;
13. Robinet golire;
14. Racord regulator de tiraj;
15. Clapeta aer;
16. Trapa pentru curățare;
17. Clapeta cu deschidere pentru
evacuarea directă a fumului la
deschiderea ușii;
18. Manometru;
19. Aerisitor;
20. Racorduri conectare la vana
termica de siguranţă;
21. Recipient pentru cenușă;
Date tehnice conform standardului EN 303/5

Date tehnice conform standardului EN 303/5

Racordarea la cosul de fum

Racordarea cazanului la un sistem de încălzire


Specificatii
| COD EAN | 5940794021582 |
|---|---|
| Producator | Regata |